Trilocale in vendita

Torino, Via Breglio - Borgata Vittoria
€ 105.000
3 locali 3 locali
71 Mq 71 Mq
1 bagno 1 bagno

Trilocale in vendita

Torino, Via Breglio - Borgata Vittoria

Descrizione annuncio

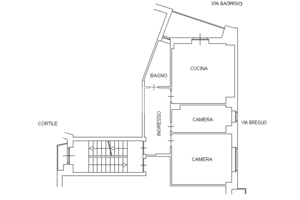
In Via Breglio vicino a Via Casteldelfino a Torino, proponiamo un appartamento di 71 mq, situato al piano basso di un edificio del 1955.
L'immobile, completamente ristrutturato, è pronto per essere abitato immediatamente e viene venduto arredato, con il mobilio che include tutti gli elettrodomestici della cucina, garantendo comfort e praticità. La recente ristrutturazione ha portato significativi miglioramenti, tra cui la sostituzione degli infissi esterni con modelli a doppi vetri, garantendo un ottimo isolamento termico e acustico. Anche le porte interne sono state rinnovate, conferendo un tocco di modernità agli ambienti. La sicurezza è stata potenziata con l'installazione di una porta blindata.
La disposizione interna comprende tre locali: la zona giorno, accogliente e luminosa dotata del balcone, rappresenta il fulcro della casa, ideale per momenti di relax e convivialità. La camera da letto matrimoniale garantisce un ambiente tranquillo e riservato, mentre una seconda cameretta offre versatilità d'uso, perfetta per ospiti, cameretta per bambini o come studio. Completano la proprietà un bagno funzionale completamente rivisto, completo di tutti i sanitari e dotato della doccia e la cantina.
Un punto di forza dell'appartamento è il riscaldamento centralizzato con termovalvole, che consente una gestione efficiente e personalizzata dei consumi.

Situato in una zona ben servita da negozi e ben collegata grazie ai mezzi pubblici, questo trilocale risulta essere ideale per chi desidera iniziare una nuova esperienza abitativa con la comodità di avere già la cucina attrezzata. La vicinanza a servizi di vario genere e la facilità di accesso al trasporto pubblico sottolineano la comodità della posizione, consentendo un facile collegamento con il centro città e la periferia. Nelle vicinanze oltre a trovare l’imbocco per il raccordo autostradale (RA10) che permette di collegare la città di Torino col suo aeroporto internazionale sito a Caselle Torinese, troviamo anche la stazione Rebaudengo Fossata: stazione ferroviaria per passeggeri della ferrovia Torino – Milano oltre ad essere una diramazione per la ferrovia Torino – Ceres.

Le fotografie mostrano in modo tangibile la luminosità degli ambienti e la distribuzione ottimale degli spazi.

Per informazioni e per visitare l'immobile contattaci:

Tel: 011290060
Cell: 3938710978
Cell: 3929127083
KIRON, PARTNER UFFICIALE, comunica che presso la nostra agenzia è possibile effettuare una consulenza gratuita con professionisti del settore bancario/creditizio.

Mostra tutto

Nelle vicinanze

Trasporto pubblico Trasporto pubblico
Principi D'Acaja
Principi D'Acaja
2,6 Km
XVIII Dicembre
XVIII Dicembre
2,9 Km
Madonna di Campagna
Madonna di Campagna
920 m
Torino Dora GTT
Torino Dora GTT
1,0 Km
Fermata 182 Largo Borgaro
Fermata 182 Largo Borgaro
940 m
Ricariche auto elettriche Ricariche auto elettriche
Bluetorino Stradella
400 m
Edit Torino
1,3 Km
Bluetorino Piazza Derna
2,2 Km
Lidl Altessano
2,2 Km
evway TO Statuto
2,6 Km
Scuole Scuole
Palestra della A.Vivaldi
90 m
Scuola media Antonio Vivaldi
90 m
Comprensorio Vivaldi Murialdo
110 m
Scuola elementare Don Murialdo
150 m
Asilo Nido "La Nidiata"
160 m
Farmacia Farmacia
Farmacia Garelli
170 m
Farmacia
360 m
Farmacia Prof. Cavanna S.N.C.
380 m
Farmacia Madonna della Vittoria
490 m
Calvo
530 m
Ospedali Ospedali
Amedeo di Savoia
1,6 Km
Ospedale Amedeo di Savoia
1,6 Km
Ospedale San Giovanni Bosco
2,2 Km
Ospedale Maria Vittoria
2,3 Km
Ospedale Oftalmico
2,8 Km
Supermercati Supermercati
Carrefour Market
480 m
Penny market
580 m
Pittarello
610 m
Bennet
680 m
In Piedi
740 m
Negozi Negozi
Negozi
330 m
Sapori del Palato
750 m
Facit
1,3 Km
Calliope
1,4 Km
Piazza Italia
1,4 Km
Bar Bar
Bar
420 m
Supermarket
560 m
Bar
940 m
Spazio 211
1,2 Km
Bar Iris
1,3 Km
Ristoranti Ristoranti
Sa Crocoriga
130 m
Grande Bambù
250 m
Moderno
340 m
Bar degli Archi
370 m
Cantine Vittoria
490 m
Mostra tutto

Caratteristiche

Rif.:
61123588
Piano:
1 di 5 (Piano basso)
Balconi:
1
Camere da letto:
1
Arredamento:
Parziale
Condizionamento:
Assente
Mostra tutto
Prezzo Prezzo
€ 105.000
Rata mutuo Rata mutuo
€ 482 / mese
Spese annue Spese annue
€ 800
Proponi il tuo prezzoProponi il tuo prezzo

Classe Energetica

D
D
D
D
D
D
D
D
D
EP globale non rinnovabile:
86.07 kW h/m² anno
EP globale rinnovabile:
0.17 kW h/m² anno
EP invernale del fabbricato:
EP estiva del fabbricato:
Anno di costruzione:
1955
Riscaldamento:
Centralizzato
Tipo impianto:
A radiatori
Tipo alimentazione:
Metano

Ti interessa visionare l'immobile?

Fissa un appuntamento  Fissa un appuntamento

Richiedi informazioni

* Questi campi sono obbligatori

Calcola il tuo mutuo

Semplice e senza impegno
Anticipo

( % )
Mutuo

( % )

pochi semplici passi

inserisci i tuoi dati
Questionario completato
Grazie per aver richiesto un appuntamento senza impegno con un nostro Consulente del Credito e Assicurativo.

Hai inserito correttamente tutti i dati necessari e a breve riceverai una e-mail con un link da convalidare per inviare i tuoi dati.
Affiliato
Studio Breglio Sas
Via Chiesa della Salute, 76/A 10148 Torino (TO)

Il nostro staff


  • Maria Cristina Muscas
    Affiliata

  • Gabriella Ghedini
    Coordinatrice

  • Giancarlo Comunale
    Collaboratore

  • Nicolò Giuliano
    Responsabile

  • Serena Salamone
    Collaboratrice
Via Chiesa della Salute, 76/A 10148 Torino (TO)
Zona: Borgo Vittoria 2 - Zona Mercato
Mostra su mappa
Orari: Dalle 8.45 alle 12.30 e dalle 14.30 alle 20.30
Affiliato
Studio Breglio Sas
Via Chiesa della Salute, 76/A 10148 Torino (TO)

2025 Tecnocasa Franchising S.p.A. - P. IVA 08365160152 - Via Monte Bianco 60/A 20089 Rozzano (MI). Ogni agenzia ha un proprio titolare ed è autonoma. Privacy policy | Policy utilizzo | Cookie policy