Trilocale in vendita

Torino, Via baracca - Borgata Vittoria
€ 79.000
3 locali 3 locali
77 Mq 77 Mq
1 bagno 1 bagno

Trilocale in vendita

Torino, Via baracca - Borgata Vittoria

Descrizione annuncio

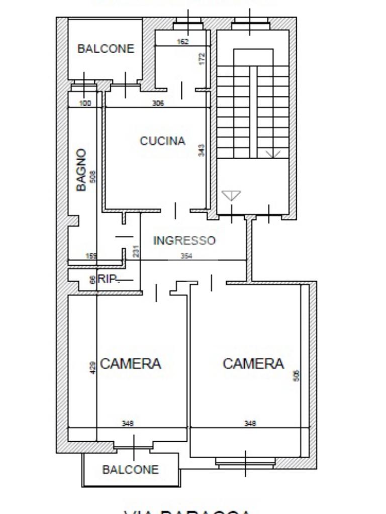
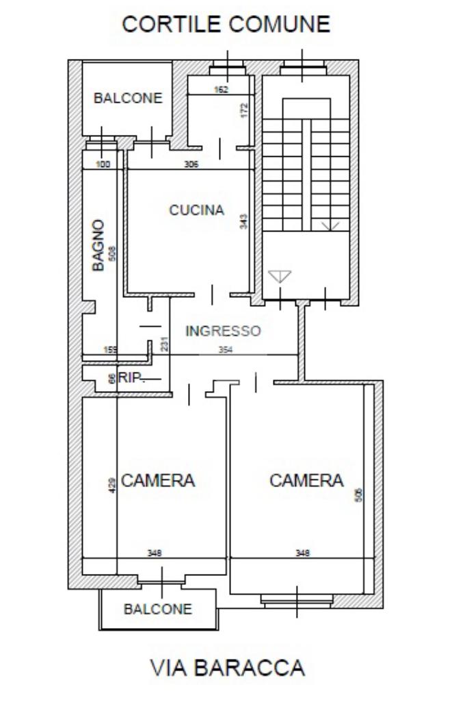
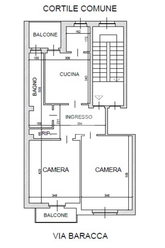
Nel cuore di Borgo Vittoria a Torino, in Via Baracca, una via tranquilla; proponiamo un appartamento in vendita situato in un edificio del 1960 rivisto nelle parti comuni.
Da pochi anni, il tetto è stato coibentato, la facciata esterna è stata rivista completamente comprendendo anche il rifacimento della pavimentazione dei balconi e la sostituzione delle ringhiere, così come è stata sostituita la caldaia condominiale.
L'immobile, di 77 mq, parzialmente rivisto al suo interno, si trova ad un piano alto, garantendo luminosità e tranquillità. La porta d’ingresso è blindata e troviamo il condizionatore che garantisce un clima confortevole in ogni stagione.
La disposizione interna comprende tre locali, tra cui due camere da letto di cui una con il parquet, ideali per famiglie o per chi necessita di spazi aggiuntivi per lo smart working. La zona giorno composta dal tinello con il cucinino è dotata del condizionatore, perfetta per chi ama cucinare e trascorrere momenti conviviali.
Due balconi offrono spazi esterni privati, perfetti per momenti di relax; sul balcone lato interno cortile troviamo gli attacchi per la lavatrice mentre sul balcone lato strada è presente la tenda estiva. La doppia esposizione garantisce un'ottima luminosità naturale durante tutto il giorno, creando un ambiente accogliente e arioso. L’immobile è anche dotato di zanzariere per proteggere gli ambienti interni da insetti e garantire fresco e tranquillo.
Il bagno finestrato è completo di tutti i sanitari con la vasca. La cantina ed il ripostiglio terminano la proprietà.
Il riscaldamento è centralizzato dotato delle valvole termostatiche con gestione autonoma, caratteristica fondamentale per un’ottimizzazione dei consumi.

Situato in una zona ben servita da negozi e ben collegata grazie ai mezzi pubblici, questo trilocale risulta essere ideale per chi desidera iniziare una nuova esperienza abitativa. La vicinanza a servizi di vario genere e la facilità di accesso al trasporto pubblico sottolineano la comodità della posizione, consentendo un facile collegamento con il centro città e la periferia.

Le fotografie mostrano in modo tangibile la luminosità degli ambienti e la distribuzione ottimale degli spazi.

Per informazioni e per visitare l'immobile contattaci:

Tel: 011290060
Cell: 3938710978
Cell: 3929127083
KIRON, PARTNER UFFICIALE, comunica che presso la nostra agenzia è possibile effettuare una consulenza gratuita con professionisti del settore bancario/creditizio.

Mostra tutto

Nelle vicinanze

Trasporto pubblico Trasporto pubblico
Principi D'Acaja
Principi D'Acaja
2,7 Km
XVIII Dicembre
XVIII Dicembre
2,8 Km
stazione di Torino Rebaudengo Fossata
stazione di Torino Rebaudengo Fossata
500 m
Torino Dora GTT
Torino Dora GTT
790 m
Lauro Rossi
Lauro Rossi
1,1 Km
Ricariche auto elettriche Ricariche auto elettriche
Edit Torino
750 m
Bluetorino Stradella
1,1 Km
Bluetorino Piazza Derna
1,6 Km
LIDL Torino Via Bologna
2,1 Km
evway TO Statuto
2,5 Km
Scuole Scuole
Accademia dello spettacolo
320 m
Scuola media Umberto Saba
410 m
Scuola elementare Giuseppe Allievo
570 m
Palestra della A.Vivaldi
690 m
Comprensorio Vivaldi Murialdo
700 m
Farmacia Farmacia
Borgo Vittoria SNC
90 m
Farmacia Breglio
250 m
Farmacia Madonna della Vittoria
390 m
Comunale 19 - Afc
400 m
Farmacia
460 m
Ospedali Ospedali
Ospedale San Giovanni Bosco
1,6 Km
Ospedale Amedeo di Savoia
1,9 Km
Amedeo di Savoia
1,9 Km
Ospedale Maria Vittoria
2,6 Km
Ospedale Maria Adelaide
2,7 Km
Supermercati Supermercati
Lidl
540 m
Eurospin
640 m
Il Gigante
830 m
In's
890 m
Pittarello
910 m
Negozi Negozi
Focacceria La Trinacria
770 m
Facit
810 m
Panificio Voglia di pane
870 m
Negozi
870 m
CRAI
1,2 Km
Bar Bar
Bar
520 m
Spazio 211
540 m
Bar
660 m
Bar Iris
950 m
Caffetteria Lombardo
1,1 Km
Ristoranti Ristoranti
Cantine Vittoria
390 m
L'Alternativa
700 m
Sa Crocoriga
740 m
Salbora
810 m
Edit
820 m
Mostra tutto

Caratteristiche

Rif.:
61101225
Piano:
4 di 4 (Piano alto)
Balconi:
2
Camere da letto:
2
Arredamento:
Assente
Condizionamento:
Autonomo
Mostra tutto
Prezzo Prezzo
€ 79.000
Rata mutuo Rata mutuo
€ 364 / mese
Spese annue Spese annue
€ 900
Proponi il tuo prezzoProponi il tuo prezzo

Classe Energetica

E
E
E
E
E
E
E
E
E
EP globale non rinnovabile:
122.77 kW h/m² anno
EP globale rinnovabile:
1.71 kW h/m² anno
EP invernale del fabbricato:
EP estiva del fabbricato:
Anno di costruzione:
1960
Riscaldamento:
Centralizzato
Tipo impianto:
A radiatori
Tipo alimentazione:
Metano

Ti interessa visionare l'immobile?

Fissa un appuntamento  Fissa un appuntamento

Richiedi informazioni

* Questi campi sono obbligatori

Calcola il tuo mutuo

Semplice e senza impegno
Anticipo

( % )
Mutuo

( % )

pochi semplici passi

inserisci i tuoi dati
Questionario completato
Grazie per aver richiesto un appuntamento senza impegno con un nostro Consulente del Credito e Assicurativo.

Hai inserito correttamente tutti i dati necessari e a breve riceverai una e-mail con un link da convalidare per inviare i tuoi dati.
Affiliato
Studio Breglio Sas
Via Chiesa della Salute, 76/A 10148 Torino (TO)

Il nostro staff


  • Maria Cristina Muscas
    Affiliata

  • Gabriella Ghedini
    Coordinatrice

  • Giancarlo Comunale
    Collaboratore

  • Nicolò Giuliano
    Responsabile

  • Serena Salamone
    Collaboratrice
Via Chiesa della Salute, 76/A 10148 Torino (TO)
Zona: Borgo Vittoria 2 - Zona Mercato
Mostra su mappa
Orari: Dalle 8.45 alle 12.30 e dalle 14.30 alle 20.30
Affiliato
Studio Breglio Sas
Via Chiesa della Salute, 76/A 10148 Torino (TO)

2025 Tecnocasa Franchising S.p.A. - P. IVA 08365160152 - Via Monte Bianco 60/A 20089 Rozzano (MI). Ogni agenzia ha un proprio titolare ed è autonoma. Privacy policy | Policy utilizzo | Cookie policy